Naves industriales en alquiler, Escuzar,
Referencia: D10161
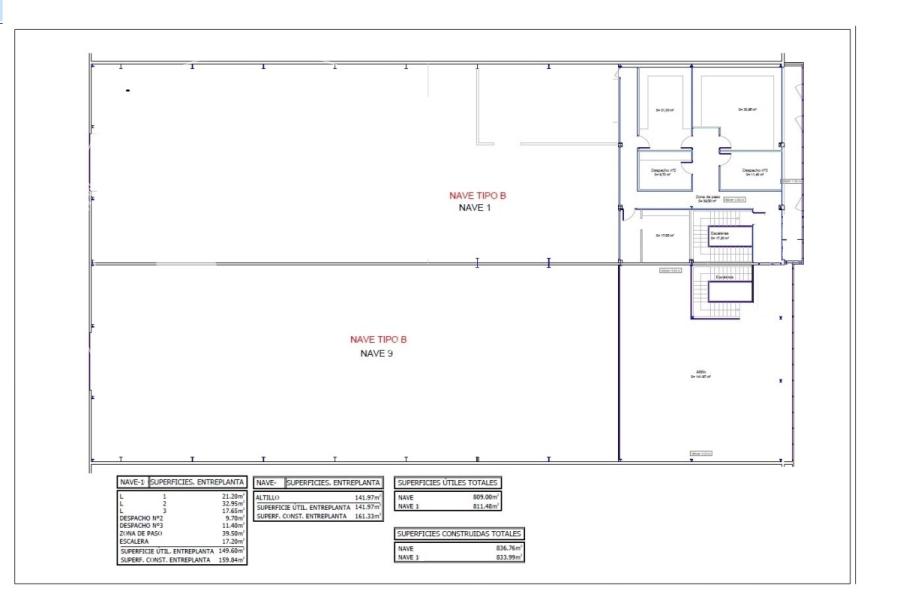
Estas dos naves industriales, ubicadas en el Polígono de Escuzar (Granada), representan una excelente oportunidad de inversión. Su cercanía a la futura ubicación del Acelerador de Partículas IFMIF-Dones y su acceso desde la nueva Ronda de Granada las convierten en una opción estratégica para negocios en expansión. Cada nave cuenta con una superficie de 900m2 y una altura máxima de 9.67m, ofreciendo amplio espacio para diversas actividades industriales o comerciales. Una de las naves incluye 5 despachos, mientras que la otra cuenta con un altillo de 141m2, proporcionando opciones adicionales de uso. Construidas conforme a los últimos estándares industriales, estas naves están completamente operativas y listas para su ocupación inmediata. No pierda la oportunidad de adquirir estas instalaciones de primera calidad en una ubicación estratégica.
El precio no incluye impuestos ni gastos. Honorarios no incluidos Las medidas son aproximadas. Los precios pueden cambiar sin aviso. Como consumidor, tiene derecho a recibir información según el Decreto 218/05 de Andalucía.
El precio no incluye impuestos ni gastos. Honorarios no incluidos Las medidas son aproximadas. Los precios pueden cambiar sin aviso. Como consumidor, tiene derecho a recibir información según el Decreto 218/05 de Andalucía.
Ubicación
Avenida serrezuela, 18130 Escúzar
Granada
Alquiler
2.500 € / mes
Superficie 950
m2Estado: Buen estado
Orientación: Sur
Ext/Interior: Exterior
Estas dos naves industriales, ubicadas en el Polígono de Escuzar (Granada), representan una excelente oportunidad de inversión. Su cercanía a la futura ubicación del Acelerador de Partículas IFMIF-Dones y su acceso desde la nueva Ronda de Granada las convierten en una opción estratégica para negocios en expansión. Cada nave cuenta con una superficie de 900m2 y una altura máxima de 9.67m, ofreciendo amplio espacio para diversas actividades industriales o comerciales. Una de las naves incluye 5 despachos, mientras que la otra cuenta con un altillo de 141m2, proporcionando opciones adicionales de uso. Construidas conforme a los últimos estándares industriales, estas naves están completamente operativas y listas para su ocupación inmediata. No pierda la oportunidad de adquirir estas instalaciones de primera calidad en una ubicación estratégica.
El precio no incluye impuestos ni gastos. Honorarios no incluidos Las medidas son aproximadas. Los precios pueden cambiar sin aviso. Como consumidor, tiene derecho a recibir información según el Decreto 218/05 de Andalucía.
El precio no incluye impuestos ni gastos. Honorarios no incluidos Las medidas son aproximadas. Los precios pueden cambiar sin aviso. Como consumidor, tiene derecho a recibir información según el Decreto 218/05 de Andalucía.


